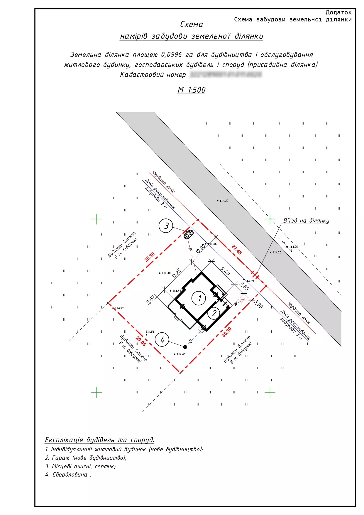
Схема намірів забудови земельної ділянки (будівельний паспорт) — важливий документ, що визначає етапи та параметри будівництва на вашій ділянці. Це необхідний крок для отримання дозволу на будівництво та планування розташування будівель, комунікацій і інфраструктури.
Наша компанія пропонує професійну розробку схеми намірів забудови (будівельного паспорта), яка враховує вимоги містобудівних норм. У вартість послуги входять креслення схеми забудови, плани та фасади, що чітко відображають розташування будівель, межі ділянки, зони для інженерних мереж та підходи до об'єктів.
Схема намірів забудови (будівельний паспорт) є обов’язковим документом для подання до органів місцевого самоврядування та отримання дозволів на будівництво. Звернувшись до нас, ви отримаєте точну схему, що відповідає всім вимогам і гарантує правильне планування забудови.
Замовте розробку схеми намірів забудови земельної ділянки (будівельного паспорта) та отримайте документ, що забезпечить законність вашого будівництва та допоможе в процесі отримання дозволу.
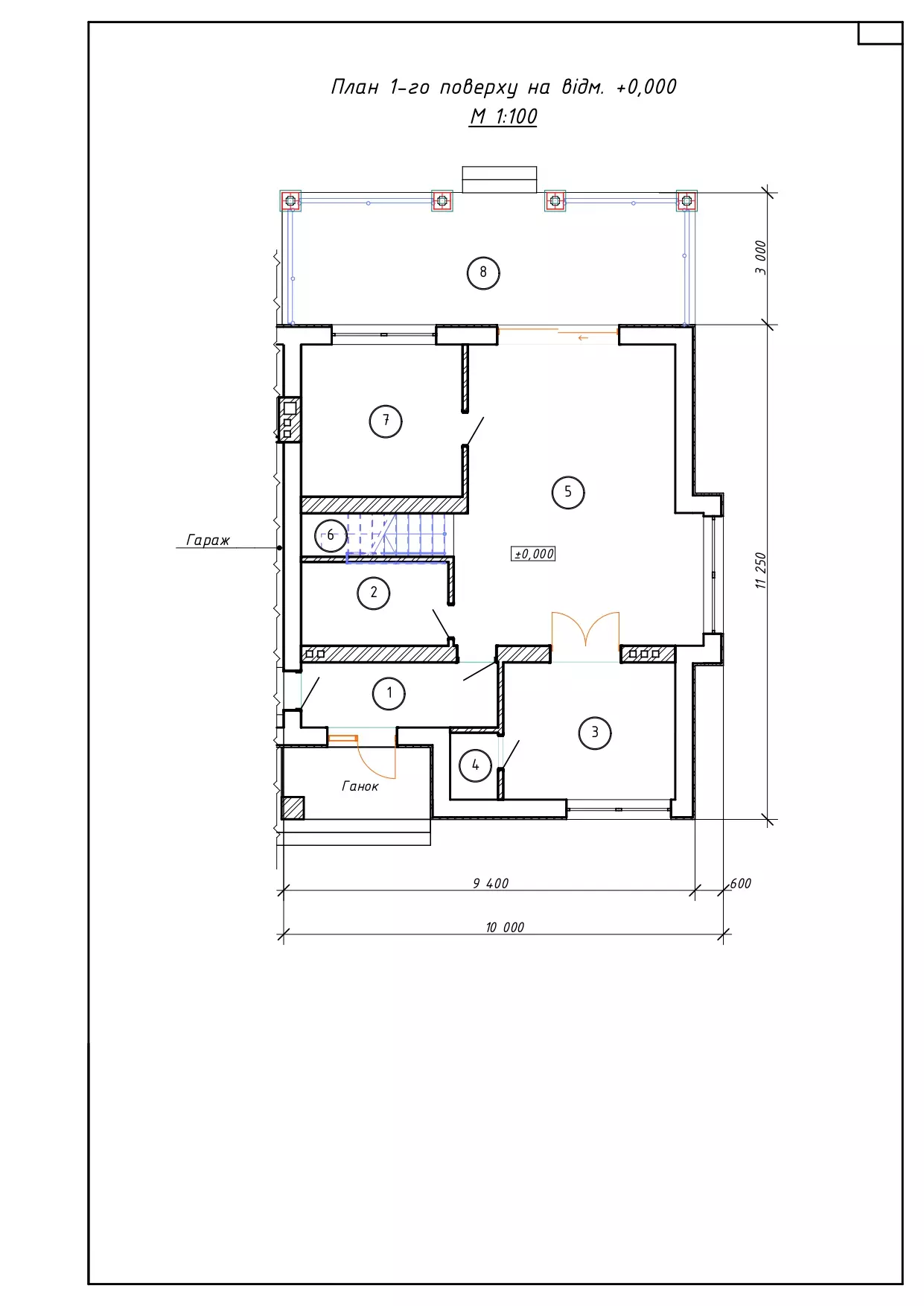
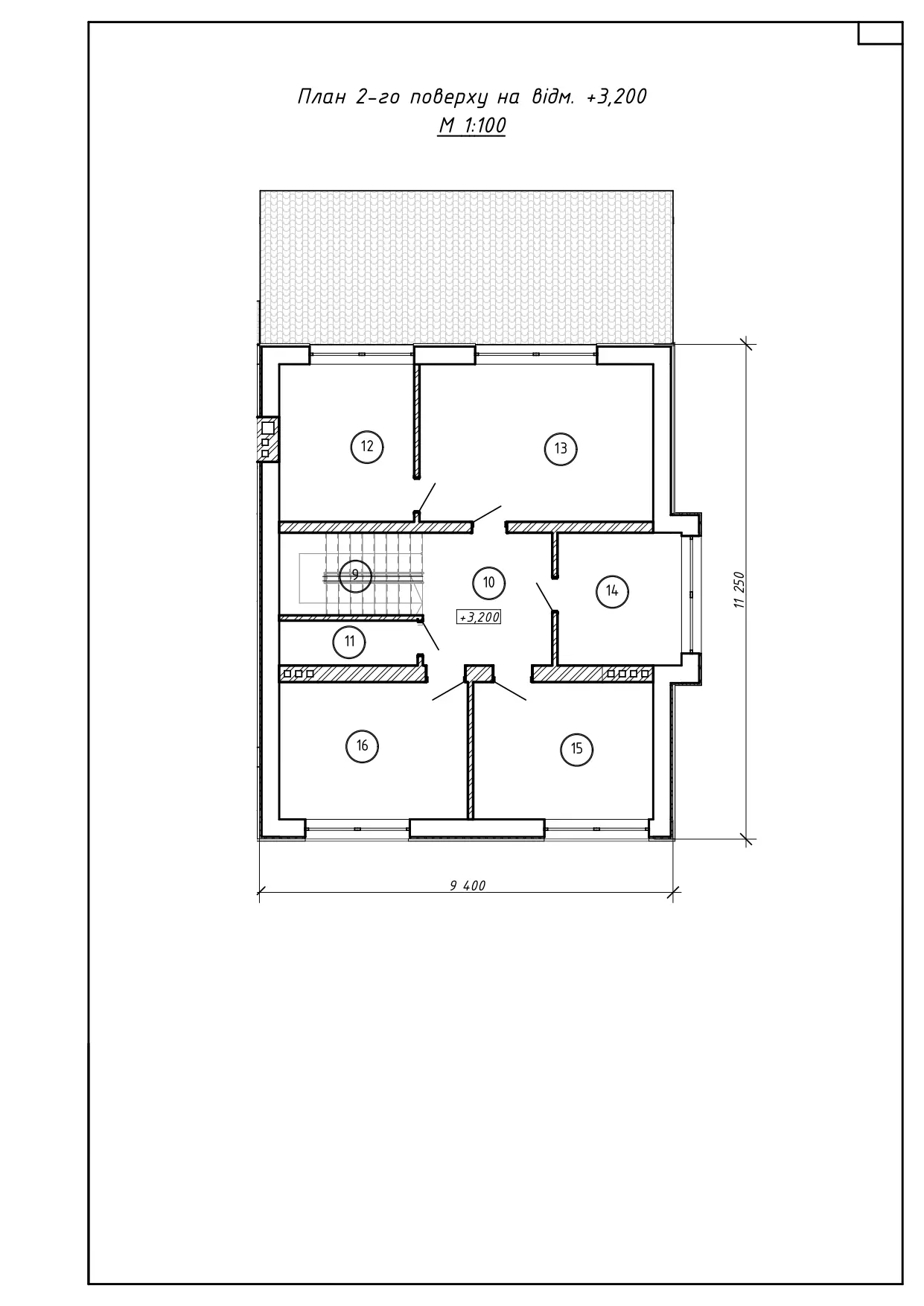
Будівельний паспорт розробляється індивідуально для кожної ділянки та проекту забудови.
Вартість розробки залежить від розмірів будівлі, наявності господарських будівель та споруд, а також особливостей ділянки.
Кожен будівельний паспорт у нашому портфоліо створений індивідуально для конкретної ділянки, з урахуванням розмірів будівель, господарських споруд та особливостей планування, щоб забезпечити комфорт і відповідність усім нормам.
Lorem ipsum dolor sit amet, consectetur adipiscing elit. Lectus enim et diam volutpat a magnis id nulla eu. Viverra tincidunt aliquam viverra feugiat.
Інформація про формат, обсяг та терміни підготовки будівельного паспорта.
Будівельний паспорт видається в 2-х однакових екземплярах, середній обсяг одного – 10–20 сторінок формату А4.
Термін розробки паспорта – від 10 до 15 робочих днів, залежно від складності ділянки та наявності господарських споруд.

Повний перелік вихідних даних для підготовки будівельного паспорта. Нижче наведено основні документи та інформацію, необхідні для його оформлення:

Шукаєте ідеальний проєкт будинку? Ми вже підготували для вас найкращі варіанти! Обирайте, адаптуйте під свої потреби та втілюйте мрію про власний дім
Замовте індивідуальний проект. Індивідуальне проектування дозволяє побудувати будинок, який реалізує насамперед ваші ідеї та побажання
Індивідуальний проект