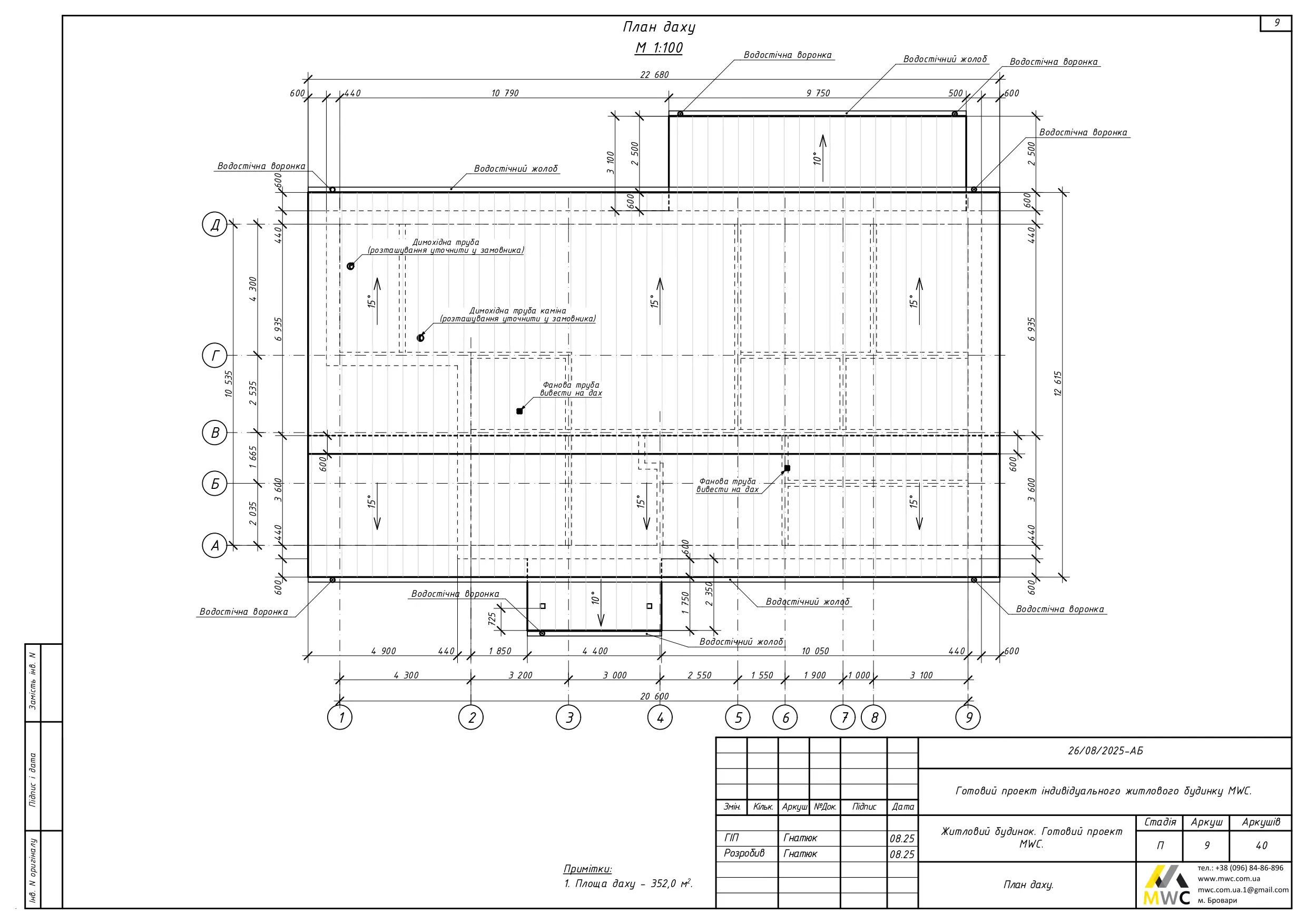
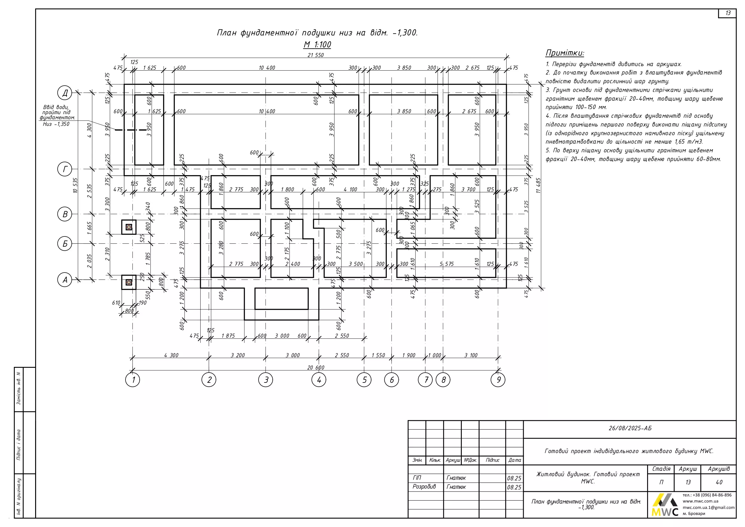
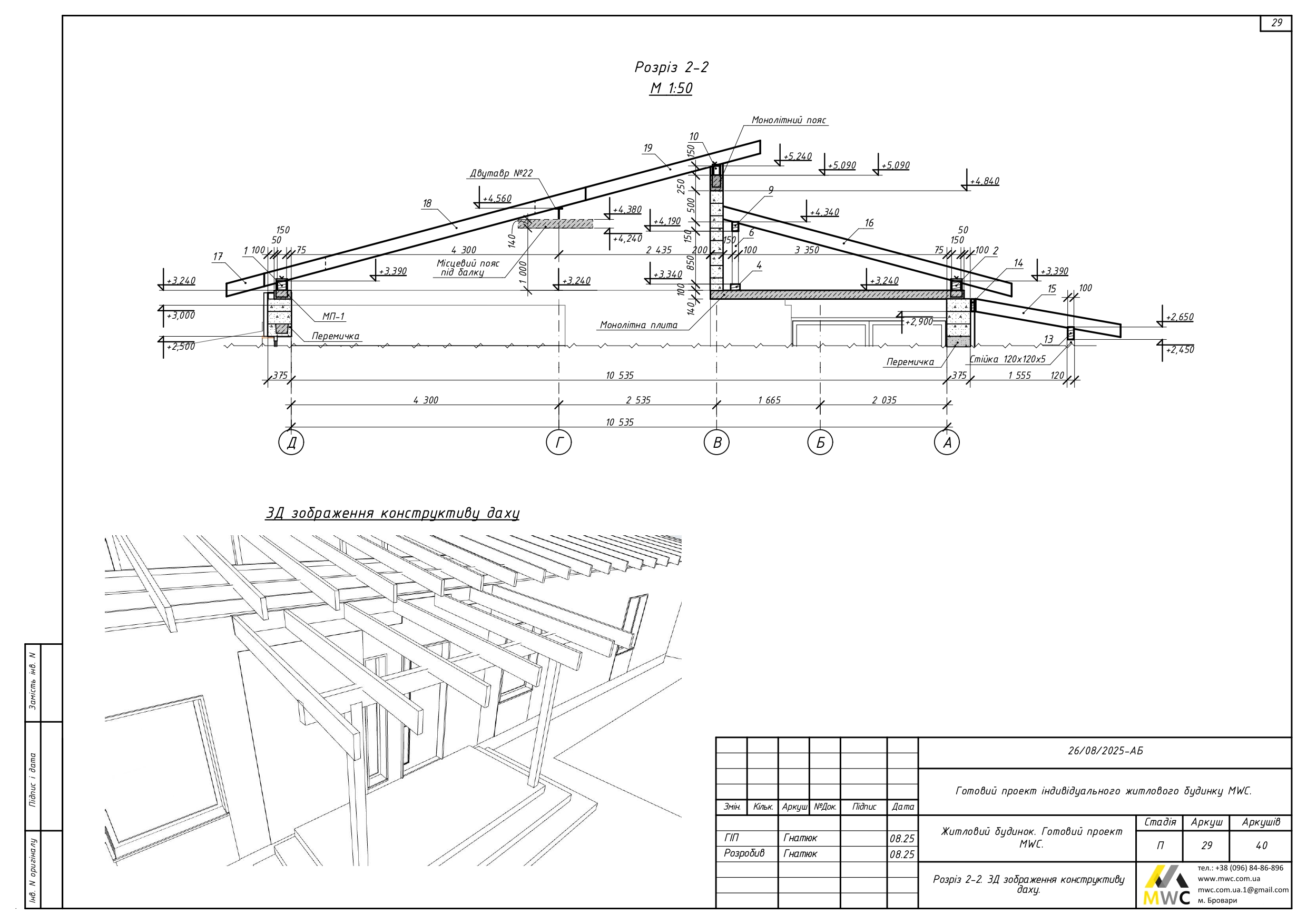
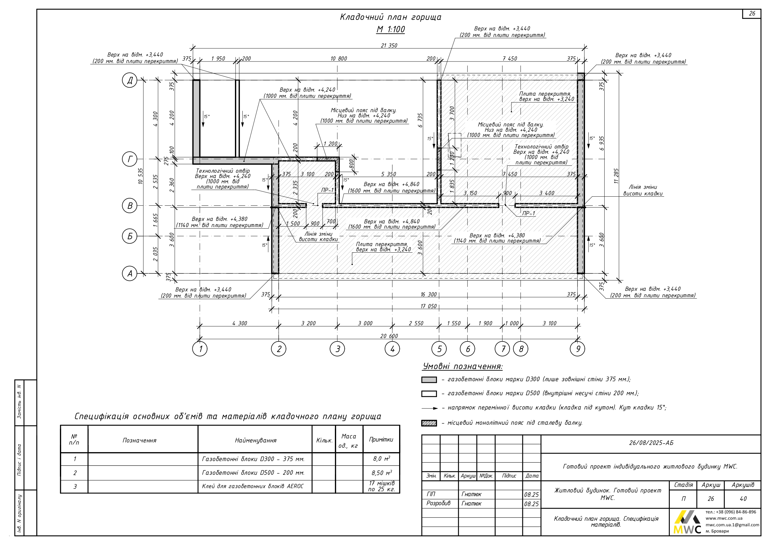
Склад готових та індивідуальних проєктів MWC — це все необхідне для втілення вашого будинку: від ескізів фасадів і 3D-візуалізацій до повного комплекту креслень (АР+КР), що відповідають будівельним нормам України. Ви отримаєте проєкт, готовий до реалізації, з чіткими планами фундаментів, перекриттів та конструктивних рішень. Обирайте якісні проєкти й економте свій час на проєктуванні. Наші проєкти поєднують сучасну архітектуру, функціональність і надійність, перевірену часом.

Дізнайтесь, у якому вигляді ви отримаєте проєктну документацію та що входить у її склад.
Ви отримаєте 3 однакові примірники проєктної документації, у середньому по 40–60 сторінок формату А4–А3 кожен.
Термін підготовки — від 3 до 20 робочих днів, залежно від складності та ваших побажань. Кожен проєкт ми опрацьовуємо з увагою до деталей, щоб ви були впевнені у його надійності та відповідності нормам.
Повний перелік та вимоги до документів для початку проєктування Дізнайтеся, які документи потрібні для успішного старту вашого проєкту.

На етапі архітектурного проектування можна оцінити якісну 3D-модель будинку, яка у кінцевому результаті стане красивою візуалізацією на обкладинці готового робочого проєкту
Замовте індивідуальний проєкт. Індивідуальне проєктування дозволяє побудувати будинок, який реалізує насамперед ваші ідеї та побажання